Establishment
By getting a view of the house on all angles, the workers can check if there are any exterior problems besides interior, and causes to the crawl space problems.
Foundation Repair
The workers examine the areas closer to the crawl space to see if anything from the outside is causing what is happening on the inside, as well as possible cracks.
Crawl Space Repair
Workers examine the crawl space to see what the current state is before cleaning.
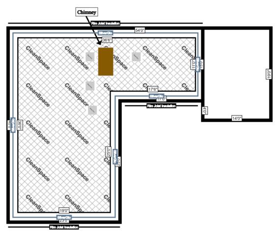
Cleanspace Blueprints
Before starting on the actual project, workers create blueprints to plan and decide where the cleanspace, SilverGlo, and rimjoist will go in the future.
Crawl Space Encapsulation
After clearing the space of rocks, workers begin to spread cleanspace throughout the area to prevent mildew, mold and other problems that could further damage the customer's crawl space.
