
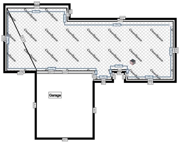
Crawl Space Blueprints
By creating a plan ahead of working, our employees can see where everything is located, and decide which areas need the most help.

Foundation Repair
The workers examine the current situation of the ground in the crawl space to see what the current situation is like.

Crawl Space Encapsulation
Our workers put cleanspace all over the crawlspace area to prevent future damage such as leaking or mold, as well as to protect the ground from future debris.

Crawl Space Repair
Our workers examine cracks, which play a part in potential and current damage in the crawl space, to see what the solution will be.

SilverGlo
After discovering cracks in the walls, the workers apply SilverGlo to prevent leakage, mold, pests, and other problems in the future.